Wohnen und leben
Einloggen Registrieren

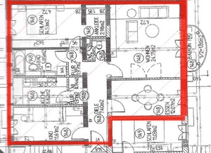
Objektdaten

Wohnfläche
98qm
Zimmer
4
Miete 1200 € (Kaltmiete) (300 € Nebenkosten)
Kontakt zum Anbieter

Objektbeschreibung

Die Wohnung hat 98m², Hochparterre, hat ein großes Schlafzimmer, ein großes Wohnzimmer mit Balkon, ein Esszimmer, eine Küche mit moderner Einbauküche (Cerankochfeld, Kühl- und Gefrierschrank, Mikrowelle, Geschirrspüler), ein großes Bad mit Badewanne und Fenster und Waschmaschinenanschluss, ein kleines Schlafzimmer, ein Gäste-WC, einen großen Flur und einen Duplex-TG Stellplatz und ein Kellerabteil. Im Haus gibt es einen Trockenraum und einen Fahrradkeller. Alle Räume werden weiss gestrichen. Warmmiete ist 1500 Euro und Kaution ist 3000 Euro.

Ausstattung

Tageslichtbad; Einbauküche; Mikrowelle; Spülmaschine; Parkett; Fliesen; Keller; Waschmaschinenanschluss; Aussenrollos;

Lage

Die Wohnung ist 5 Minuten von der Tramhaltestelle Parzivalplatz entfernt und man erreicht die Münchner Freihei innerhalb von 10 Minuten (inkl. Laufweg zur Tram). In Laufweite befinden sich Ärzte, Einkaufsmöglichkeiten und das Schwabinger Krankenhaus. Der Englische Garten ist in 10 Rad-Minuten erreichbar.

Anbieter kostenlos kontaktieren

Nicht lesbar? Ein anderes Wort

Wie verhalten bei einer Wohnungsbesichtigung?

Welche Daten sollte man bei der Mieterselbstauskunft angeben? Was muss sonst noch bedacht werden?

ähnliche Anzeigen

Sonnige preiswerte 2-R-Wohnung in Magdeburg-Neu Olvenstedt  mit  BLK  ca. 39  m²; im  EG 58679
Magdeburg

39130  

zur Miete
Ruhige 2-R-Whg. in Alte Neustadt mit Balkon, WG-geeignet, Nähe Uni, EG, ca. 60 m², Bad mit Wanne 45169
Magdeburg

39106  

zur Miete
Erfüllen Sie Ihren Familien-Traum - 3,5 Zimmer im ruhigen Wellingsbüttel 45142
zum Kauf
Windmühle (Galerie-Holländer) auf der Insel Fehmarn - teil-/vollgewerblich nutzbar 48571
Fehmarn

23769  

zum Kauf
Alleinerziehende aufgepasst! Paket aus 1 Zi + 2 Zi. Wohnung mit Garten + Stellplatz in kleinem 8-FH 48675
zum Kauf
Charmantes Mittelreihenhaus mit Vollkeller im beschaulichen Langenhorn 46057
Hamburg

22415  

zum Kauf

Interessante Möbelstücke