Wohnen und leben
Einloggen Registrieren

Objektdaten

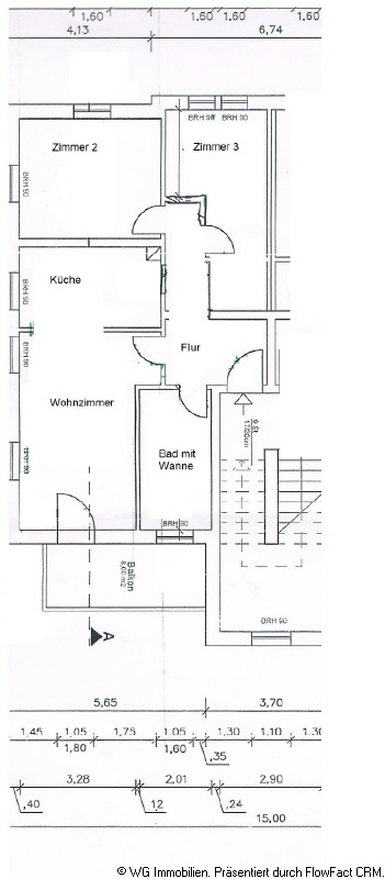
Wohnfläche
74qm
Zimmer
3
Miete 611 € (Warmmiete) (140 € Nebenkosten)
Kontakt zum Anbieter

Objektbeschreibung

Gepflegtes Mehrfamilienhaus.

Ausstattung

Die Wohnung hat einen sehr schönen Grundriss. Alle Zimmer gehen vom Flur ab. Das Wohnzimmer mit dem großen Balkon ist gut möblierbar. Der Balkon ist zum Innenhof ausgerichtet. Die Küche ist halboffen. Die moderne Küche kann von der Vormieterin abgekauft werden. Sie ist sehr hochwertig, fast neu und mit allen Geräten ausgestattet. Im Schlafzimmer finden ein Doppelbett und ein bis zwei Schränke Platz. Das Kinderzimmer bietet viel Platz und ist durch die zwei Fenster schön hell. Auch im Flur kann neben der Garderobe noch ein größerer Schrank gestellt werden.

Lage

Ruhige Lage am Stadtrand von Pirna. Das große Grundstück ist ideal, wenn man Kinder hat. Auch die Wäsche kann im Hof getrocknet werden. Dieser wird von allen Mietern genutzt.

Anbieter kostenlos kontaktieren

Nicht lesbar? Ein anderes Wort

Informationen zum Makler

WG Immobilien
Putjatinstr. 1
01259 Dresden

Telefon: 0351 2095702

Wie verhalten bei einer Wohnungsbesichtigung?

Welche Daten sollte man bei der Mieterselbstauskunft angeben? Was muss sonst noch bedacht werden?

ähnliche Anzeigen

möbeliert Wohnen im kölner süden 439658
Köln

50968  

zur Miete
Helles Appartement 431948
Marburg/Lahn

35039  

zur Miete
Mondäne 3-4 Zimmer-Altbauwohnung in Hamburg 426144
Hamburg

22087  

zur Miete
Stemmer Immobilien *** Kinderfreundliche 3 - Zimmer-Wohnung mit Balkon in Vlotho *** 425175
Vlotho

32602  

zur Miete
Penthouse vermieten 5 Zimmer Berlin 425090
Berlin

10115  

zur Miete
Wunderschöne Wg geeignete Wohnung im Szeneviertel Flingern 425055
Düsseldorf

40235  

zur Miete

Interessante Möbelstücke