Wohnen und leben
Einloggen Registrieren

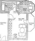
Objektdaten

Wohnfläche
35.92qm
Zimmer
1
Miete 180 € (Kaltmiete) (72 € Nebenkosten)
Kontakt zum Anbieter

Objektbeschreibung

keine Angabe, beim Anbieter erfragen

Ausstattung

- Laminat im Wohnraum<br>- Bad und Küche gefließt<br>- Bad mit Wanne <br>- Waschmaschinenanschluß in der Küche<br>- Zugang zur Terrasse über Wohnraum<br>- praktischer Abstellraum in der Wohnung<br>

Lage

- Chemnitz Gablenz<br>- zentrumsnahe und beliebte Wohnlage<br>- beliebte Wohngegend in Chemnitz ist bekannt für seine weitläufigen Park- und Gartenanlagen, die zu einem erholsamen Spaziergang einladen<br>- Einkaufsmöglichkeiten und öffentliche Einrichtungen befinden sich in der Nähe<br>- fußläufig zu erreichende gastronomische Einrichtungen

Anbieter kostenlos kontaktieren

Nicht lesbar? Ein anderes Wort

Informationen zum Makler

Immotreff Radschinsky
Walter-Oertel-Straße 24
09112 Chemnitz

Telefon: 0371/313151

Wie verhalten bei einer Wohnungsbesichtigung?

Welche Daten sollte man bei der Mieterselbstauskunft angeben? Was muss sonst noch bedacht werden?

ähnliche Anzeigen

kein 0815-Studentenwohnheim -1 Raum-Appartements am Campus 141115
Mittweida

09648  

zur Miete
3ZKB + Balkon Nachmieter gesucht 49575
Essen

45128  

zur Miete
Schöne 2-Zimmer-Wohnung in Regensburg Süd 49519
Regensburg

93051  

zur Miete
Single Wohnung mitten in Ehrenfeld WM515,00  49302
Köln

50823  

zur Miete
Sonnige  gemütliche  5-R-Whg.mit Herz , san.Altbau im  1. OG ,in  MD-Sudenburg ca. 110 m²;mit Balkon 73988
Magdeburg

39112  

zur Miete
Sonnige   preiswerte 4-R-Whg. mit  zwei  Balkone  in Magdeburg -Stadtfeld West , 2.OG ca.99 m² Lift 72739
Magdeburg

39110  

zur Miete

Interessante Möbelstücke