Wohnen und leben
Einloggen Registrieren

Objektdaten

Wohnfläche
85qm
Zimmer
3
Miete
Kontakt zum Anbieter

Objektbeschreibung

Bestimmen Sie selbst wie Sie sich Ihr neues zuhause wünschen - Flexibilität ist unser Markenzeichen ! Gestalten Sie Ihre neue Maisonettwohnug nach Ihren eigenen persönlichen Bedürfnissen und Wünschen. Für den Fall das Sie selbst noch gestalterisch tätig werden wollen, können wir Ihnen sicherlich auch eine preislich akttraktive Alternative anbieten, um an den monatlichen Mietkosten noch zu sparen - denn : NICHTS IST UNMÖGLICH!!

Ausstattung

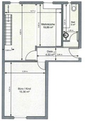
Die Wohnung erstreckt sich vom 2. OG in das darüberliegende Dachgeschoss und beinhaltet das Komplettpaket, inklusive offenem Grundriss, voll ausgebautem Dachgeschoss, Echtholz & Laminatböden und vieles vieles mehr ! Fenster in jedem Zimmer ( ebenfalls Bad und Küche ) sind bei uns selbstverständlich und gehören zu jeder Grundausstattung dazu. Abgezogener Dielenboden auf Naturholzbasis nachbehandelt und aufgebaut bringt den richtigen Flair in die Wohnung, das darüberliegende modern gestaltete Dachgeschoss ist wahlwese mit Laminat (Farbe nach Wahl ) oder Teppich ( nach Ihrer Wahl ) ausgestattet. Badezimmer 3/4 hoch modern gefließt, in jeder Wohnung Badewanne und Dusche vorhanden !

Lage

Die helle freundliche Maisonette Wohnung befindet sich inmitten des grünen Köpenicks, in einer städtebaulich gelungenen Wohnanlage aus den 30er Jahren unweit der Bahnhofstraße und dem dortigen Einkaufszentrum "Forum Köpenick". Die Wohnung ist ruhig gelegen in einer Tempo 30 Zone, jedoch sehr verkehrsgünstig, den Sie haben unmittelbaren Anschluss an Bus, Tram oder den ca 5 Gehminuten entfernten S-Bahnhof Köpenick. Abgesehen vom Forum Köpenick ( welches ca 6 Gehminuten entfernt liegt ) haben sie in unmittelbarer Nähe weitere Einkaufsmöglichkeiten, von der Drogerie über Lebensmittelketten wie Aldi, Lidl, Penny, Plus, Reichelt etc. sowie Ärzte und Apoteken. Kindergarten, Kita, Grundschule und weiterführende Schule sind ebenfalls ganz in der Nähe und können zu Fuß innerhalb 3 Minuten erreicht werde. Durch die Ausrichtung sämtlicher Wohnungen nach Südwesten mit Blick auf die zur Anlage gehörenden, weitläufigen Grünflächen eine ruhige und gleichzeitig zentrale Wohnlage. Sonstiges: Die Wohnanlage befindest sich in einem sehr guten und stabilien sozialen Umfeld, umringt von viel Grün und ohne Hausschmierereien ! Dies können nicht viele Strassenzüge von sich behaupten - WIR SCHON !

Anbieter kostenlos kontaktieren

Nicht lesbar? Ein anderes Wort

Wie verhalten bei einer Wohnungsbesichtigung?

Welche Daten sollte man bei der Mieterselbstauskunft angeben? Was muss sonst noch bedacht werden?

ähnliche Anzeigen

2 Zimmerwohnung - vieles GRATIS 10735
Berlin

10557  

zur Miete
Sonnige 3.Zi.Whg.mit weitem Fernbli 10730
Springe

31832  

zur Miete
zentrale 2- ZImmer-Wohnung 10727
Delmenhorst

27749  

zur Miete
3-Zimmerwohnung 10719
Altomünster

85250  

zur Miete
Helle Wohnung in Vendersheim 10706
Vendersheim

55578  

zur Miete
nette 1-Zimmer-Wohnung 10690
Schwabering

83139  

zur Miete

Interessante Möbelstücke